13208166786
282644463@qq.com
搜索
城市
首页
关于我们
装配式建筑
新闻中心
成功案例
联系我们
装配式建筑
网站首页
>
装配式建筑
1
/
4
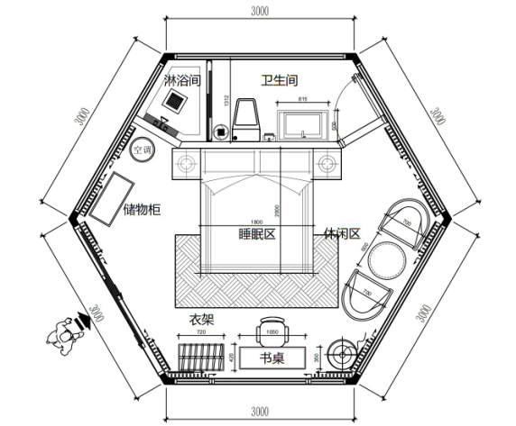
六边形帐篷(竹林物语)
主材:优质碳钢钢管(氟碳漆防锈处理)
外膜:PVDF优质膜材
内膜:PVC
墙体:双层中空玻璃规格:3m6边套内面积:24㎡
投影面积:44.87㎡
抗风等级:10级以下
产品咨询
产品介绍
上一篇:
四边形帐篷(江南忆)
下一篇:
八边形帐篷(花筑别苑/云上小筑)
产品咨询
提交留言